Loading...

APPARTEMENT 85 M2 / 3 CH / LA TURBALLE PROCHE MER ET PORT

4 pièce(s)
3 chambre(s)
1 salle(s) de bain
85m²
APPARTEMENT 85 M2 / 3 CH / LA TURBALLE PROCHE MER ET PORT
La Turballe - Réf 110_JMR-0025064
350 000 €Honoraires à la charge du vendeur
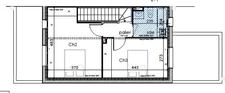
Spacieux et lumineux appartement en rez-de-chaussée s'apparentant à une maison individuelle, comprenant au RDC : une accueillante entrée avec placard, un grand séjour / salon / cuisine ouverte d'environ 27 m2, une chambre avec placard, une salle d'eau avec WC. A l'étage : un palier desservant 2 belles chambres de 16 et 12 m2 environ, avec placards aménagés, une salle de bains avec WC. Un petit jardin avec terrasse bois, une cave extérieure et une place de parking aérien complètent ce bien.
Menuiseries PVC bicolores, volets roulants électriques ( fermeture centralisée ), carrelage 40 x 40 au sol du RDC, sol PVC imitation parquet à l'étage, chauffage gaz, fibre. Garantie décennale.
Au coeur de l'accueillante commune de La Turballe, à quelques dizaines de mètres de la mer et de ses plages familliales, aux portes des renommés marais salants guérandais, à un petit kilomètre du port de pêche et de plaisance, du centre ville et de ses dynamiques commerces et nombreux restaurants, la commune de La Turballe se situe au centre d'une presqu'île authentique, ouverte sur l'océan et qui rayonne de Piriac au Croisic, en passant par Mesquer, Guérande, La Baule, Le Pouliguen ou encore Batz sur Mer.
Copropriété sécurisée comprenant 10 logements. Pas de procédure en cours. Montant prévisionnel des charges annuelles d'environ 500/600 EUR/an à confirmer.
Les informations sur les risques auxquels ce bien est exposé sont disponibles sur le site Géorisques : www.georisques.gouv.fr
Date de réalisation du Diagnostic de Performance Energétique ( DPE ) : mai 2024
Consommation énergie primaire : 50 kWh/m2/an. ( Classe : B )
Montant estimé des dépenses annuelles d'énergie pour un usage standard : entre 410 EUR et 590 EUR par an. Prix moyens des énergies indexés au 1 janvier 2021 (abonnements compris)
Pour plus de renseignements, contactez votre conseiller immobilier NOOVIMO : Jean-Louis MEUNIER, portable : 06 68 89 28 00, mail : jlmeunier@noovimo.fr, site : jlmeunier.noovimo.fr, Annonce rédigée par Jean-Louis MEUNIER, agent commercial immobilier, mandataire indépendant inscrit au RSAC de Saint-Nazaire sous le No 481 853 406. Prix de vente TTC : 350 000 EUR, honoraires inclus à la charge du vendeur. Nos honoraires sont consultables sur : www.noovimo.fr 1 - Annonce rédigée et publiée par un Agent Mandataire -
Bilan énergétique
DPE_ passoire énergétique logement extrêmement performant logement extrêmement peu performant consommation (énergie primaire) 50 kWh/m²/an émissions* 45 kgCO2/m²/an
DPE_ * Dont émissions de gaz à effet de serre peu d'émissions de CO2 émissions de CO2 très importantes 45 kgCO2/m²/an
Partager ce contenu
Jean-louis MEUNIER
Jean-louis MEUNIER
Guérande
Me contacter par téléphone Message
Vous ne trouvez pas votre bonheur ? Votre projet d'achat
Noovimo, société au capital de 10000.00 euros. Siège social : 29 Romain Rolland 44100 Nantes. N° de TVA intracommunautaire : FR75793556051. RCS NANTES immatriculé(e) 793556051.
Carte T : 44012018000028735. Date de délivrance : NC. Lieu de délivrance : CCI DE NANTES. Caisse de garantie financière : AXA ASSURANCE. N° de caisse de garantie : NC. Adresse de la caisse de garantie : NC. Montant de la garantie financière : 110000 euros.
Conformément aux articles L611-1 et suivants et R612-1 et suivants du Code de la consommation, le consommateur est informé qu’il a la possibilité de saisir un ou notre médiateur de la consommation, à savoir MEDIATION – VIVONS MIEUX ENSEMBLE situé 465 avenue de la Libération 54000 NANCY - email : mediation@vivons-mieux-ensemble.fr - site : www.mediation-vivons-mieux-ensemble.fr
Barème d'honoraires

Nous contacter

Loading...
Les informations recueillies sur ce formulaire sont enregistrées dans un fichier informatisé par Noovimo Ouest pour gérer votre demande de contact. Elles sont conservées pour la durée nécessaire à la gestion de la relation client dans le respect des prescriptions légales applicables et sont destinées au responsable de la publication de ce site : Noovimo Ouest.
Conformément à la loi « informatique et libertés », vous pouvez exercer votre droit d'accès aux données vous concernant et les faire rectifier en contactant Noovimo Ouest contact@noovimo.fr ou en utilisant ce formulaire. Nous vous informons de l’existence de la liste d'opposition au démarchage téléphonique « Bloctel », sur laquelle vous pouvez vous inscrire ici : https://www.bloctel.gouv.fr/