Loading...

Appt récent 3 chambres, balcon et terrasse

4 pièce(s)
3 chambre(s)
1 salle(s) de bain
76m²
Appt récent 3 chambres, balcon et terrasse
Cancale - Réf 85_VMU4-0016535
Vendu(e)
EXCLUSIVITE NOOVIMO Valérie MATHIEU
RARE A CANCALE : Appartement T4 récent (2020) habitable immédiatement.
Valérie MATHIEU vous présente ce très bel appartement récent de 75 m2, dont la grande luminosité et le calme vont vous séduire.
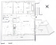
Au 1er étage sans ascenseur, il se compose d'une pièce de vie lumineuse de 30 m2 orientée sud et Ouest ouvrant sur terrasse et loggia de 8 et 10 m2, avec cuisine aménagée et équipée, d'une arrière cuisine/buanderie, 3 chambres, 1 dressing séparé, 1 salle de bain, wc séparés. Placards, double-vitrage, chauffage individuel gaz.
1 cellier accessible par la terrasse, 1 second cellier en rdc et 2 places de stationnement privatives complètent cet appartement.
Copropriété achevée en 2020 comprenant 25 logements répartis en 3 blocs, 41 places de stationnement privatives, un local à vélos commun par bloc, et caves privatives. Charges de copropriété : 68 EUR/mois.
Arret bus à 500 m, Super U 400 m, Plage de Verger à 10 min à Vélo, centre ville à 1,5 km.
Honoraires : 3,8 % TTC de 288 500 EUR (prix de vente hors honoraires), soit 299 463 EUR honoraires inclus, à la charge de l'acquéreur. Nos honoraires sont consultables sur www.noovimo.fr. Cette annonce est rédigée par votre conseillère Noovimo Valérie MATHIEU, 07 63 42 89 99, vmathieu@noovimo.fr, votre agent commercial Noovimo inscrite au RSAC de Saint-Malo sous le No 850 783 796.
Les informations sur les risques auxquels ce bien est exposé sont disponibles sur le site Géorisques : http://www.georisques.gouv.fr
1 - Annonce rédigée et publiée par un Agent Mandataire -
Bilan énergétique
49
11
Partager ce contenu
Valérie MATHIEU-MOREL
Valérie MATHIEU-MOREL
RSAC : 850783796
Cancale et ses environs
Me contacter par téléphone Message
Vous ne trouvez pas votre bonheur ? Votre projet d'achat
Noovimo, société au capital de 10000.00 euros. Siège social : 29 Romain Rolland 44100 Nantes. N° de TVA intracommunautaire : FR75793556051. RCS NANTES immatriculé(e) 793556051.
Carte T : 44012018000028735. Date de délivrance : NC. Lieu de délivrance : CCI DE NANTES. Caisse de garantie financière : AXA ASSURANCE. N° de caisse de garantie : NC. Adresse de la caisse de garantie : NC. Montant de la garantie financière : 110000 euros.
Conformément aux articles L611-1 et suivants et R612-1 et suivants du Code de la consommation, le consommateur est informé qu’il a la possibilité de saisir un ou notre médiateur de la consommation, à savoir MEDIATION – VIVONS MIEUX ENSEMBLE situé 465 avenue de la Libération 54000 NANCY - email : mediation@vivons-mieux-ensemble.fr - site : www.mediation-vivons-mieux-ensemble.fr
Barème d'honoraires

Nous contacter

Loading...
Les informations recueillies sur ce formulaire sont enregistrées dans un fichier informatisé par Noovimo Ouest pour gérer votre demande de contact. Elles sont conservées pour la durée nécessaire à la gestion de la relation client dans le respect des prescriptions légales applicables et sont destinées au responsable de la publication de ce site : Noovimo Ouest.
Conformément à la loi « informatique et libertés », vous pouvez exercer votre droit d'accès aux données vous concernant et les faire rectifier en contactant Noovimo Ouest contact@noovimo.fr ou en utilisant ce formulaire. Nous vous informons de l’existence de la liste d'opposition au démarchage téléphonique « Bloctel », sur laquelle vous pouvez vous inscrire ici : https://www.bloctel.gouv.fr/